www.sellthe605.com/homes/171563865
3309
N
Geneva Trl Trail
Sioux Falls,
SD
57107
Neighborhood:
Mcgee Farms Addn To City Of Sioux Falls
Elementary School:
Tri-Valley Es
Middle School:
Tri-Valley Jhs
High School:
Tri-Valley Hs
School District:
Tri-Valley
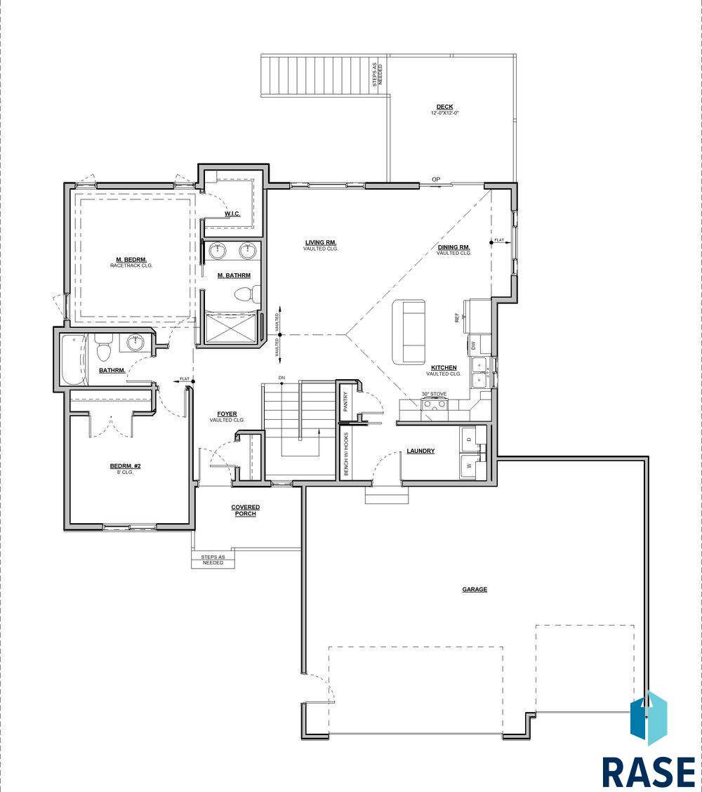
Introducing the Custer ranch floor plan, a new construction home featuring 2 bedrooms, 1 3/4 bathroom, and a 3-stall garage. This plan offers an open-concept layout connecting the living(carpet), dining, and kitchen areas. Kitchen includes a pantry, island and appliances. Primary bedroom with spacious closet adn bath with fiberglass shower and double sinks. Unfinished Basement with poteital for 2 bedrooms, 1 bathroom and another living space to build equity. Includes final grading of the yard, does not include sod/sprinkler/landscaping.
Architectural Style
Ranch
Construction Materials
Hard BoardStone
Foundation Details
Poured
Garage Amenities
None
Garage Dimensions
26x32
Garage Type
Attached
Lot Features
City LotWalk-Out
Patio And Porch Features
Deck
Roof
Composition
Style Sub Type
Walk Out
Above Grade Finished Area
1205
Appliances
Electric RangeMicrowaveDishwasherDisposalRefrigerator
Basement
Full
Below Grade Finished Area
0
Below Grade Unfinished Area
1077
Cooling
Central Air
Fireplaces Total
0
Flooring
CarpetLaminateVinyl
Interior Features
Master DownstairsVaulted Ceiling(s)Master BathMain Floor Laundry
Main Level Bedrooms
2
Master Bedroom Level
Main
Rooms Total
6
Additional Property Information
New Construction
Association YN
No
Heating
Natural Gas
Inside City Limits YN
Yes
Is Land Owned Or Leased YN
Owned
Lot Size Dimensions
71x120
New Construction Est Compl Date
2026-02-03
Possession
Negotiable
Potential Short Sale
No
Property Sub Type1
Single Family Residence
Reo Or Bank Owned
No
Road Responsibility
Public Maintained Road
Road Surface Type
Curb and Gutter
Sale Or Rent
S
Sewer
Public Sewer
Tax Annual Amount
0
Tax Legal Description
Lot 26 Block 15 McGee Farms Addn To City Of Sioux Falls
Water Source
Public

Listing provided courtesy of Brandon Martens of Better Homes and Gardens Real Estate Beyond: 605-275-4663. © 2026 REALTOR® Association of the Sioux Empire, Inc., Multiple Listing Service. All Rights Reserved. Information Deemed Reliable But Not Guaranteed.
The data relating to real estate for sale on this web site comes in part from the Internet Data Exchange Program of the REALTOR® Association of the Sioux Empire, Inc., Multiple Listing Service. Real estate listings held by brokerage firms other than Sioux Empire Realty Group | Hegg Realtors are marked with the Internet Data Exchange™ logo or the Internet Data Exchange thumbnail logo (a little black house) and detailed information about them includes the name of the listing brokers. Information is deemed reliable but not guaranteed. IDX information is provided exclusively for consumers' personal, non-commercial use and may not be used for any purpose other than to identify prospective properties consumers may be interested in purchasing. Data last updated: 2026-01-16T09:22:14.713.